
Vlakbij het centrum ligt deze bouwgrond aan de Norbertijnerlei in Duffel. De ligging is rustig en residentieel, met een vlotte verbinding naar winkels, openbaar vervoer en invalswegen. De Kasteelruïne Ter Elst en het treinstation van Duffel bevinden zich op wandel- en fietsafstand.
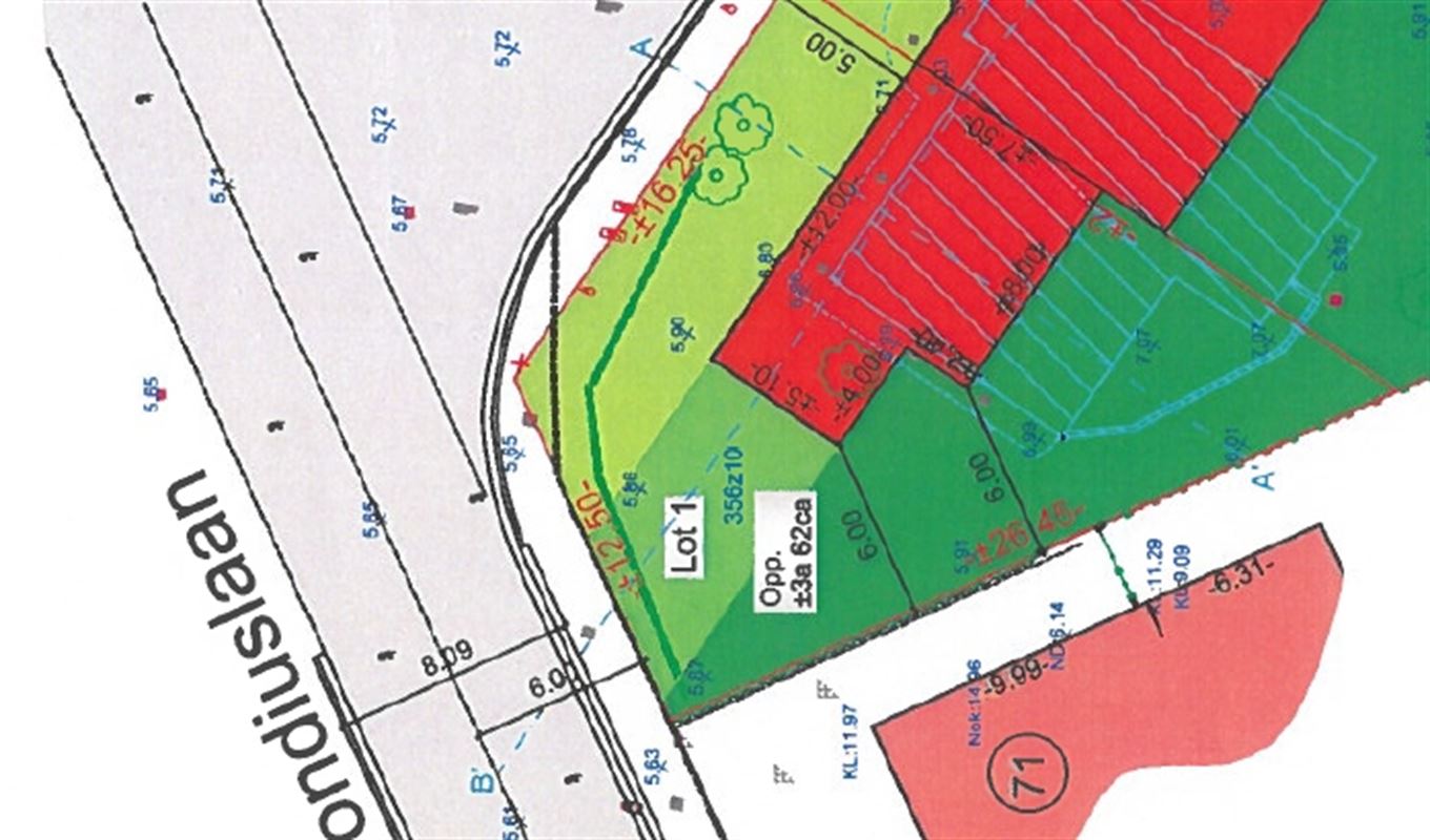
De bouwgrond is geschikt voor een HOB en is ca 362 m² groot.
Algemeen:
- bouwgrond gelegen aan de Norbertijnerlei
- vlotte verbinding naar centrum Antwerpen en belangrijke invalswegen
- geschikt voor residentiële bebouwing (mits vergunning)
Troeven:
- hoekperceel
- toplocatie nabij water en centrum
- diverse bouwmogelijkheden
Ben jij geïnteresseerd in deze bouwgrond te koop in Duffel, ben je op zoek naar ander vastgoed, een investering of wens je de waarde van jouw eigendom te kennen? Dan ben je bij BOLT immo aan het juiste adres! Wij helpen jou graag verder.
