Appartement met 1 slaapkamer en terras (12m²) te Merksem
Ligging:
In een recent opgewaardeerde en heraangelegde wijk in Merksem, aan de Heirmanstraat, staat dit appartement te koop. Tegenover het appartement is een groen pleintje gelegen. Verder zijn alle mogelijkheden voor openbaar vervoer, winkels en horecagelegenheden op wandelafstand gelegen.
Indeling:
Het appartement is gelegen op de eerste verdieping van een gebouw met 6 appartementen. Er is geen lift, en dus ook geen gemeenschappelijke kosten! Parkeren met de wagen kan je in de garage, dewelke mogelijk bij aangekocht kan worden. Jouw fiets kan je veilig opbergen in de gemeenschappelijke fietsenstalling.
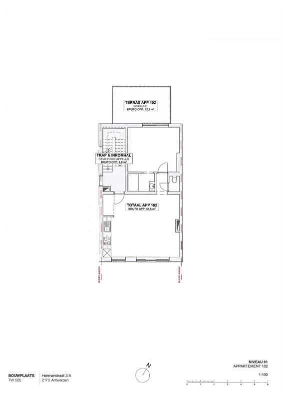
Vooraan bevindt zich de leefruimte met een open geïnstalleerde keuken. De slaapkamer is achteraan gelegen en heeft een rechtstreekse toegang naar het terras van zo'n 12m². Verder is er nog de badkamer en een apart toilet.
Bijzonderheden:
- gerenoveerd in 2023
- momenteel verhuurd voor 850 euro/maand
- geen gemeenschappelijke kosten
- conforme elektriciteit
- bewoonbare oppervlakte 54m² cfr. EPC
Ben jij geïnteresseerd in dit appartement in Merksem, ben je op zoek naar ander vastgoed of wens je de waarde van jouw eigendom te kennen? Dan ben je bij BOLT immo aan het juiste adres! Wij helpen jou graag verder.



















.png?format=webp&width=640&height=auto)
.png?format=webp&width=640&height=auto)








