Projectgrond te Antwerpen-Berchem voor commercieel glvl + 5 appartementen
Er werd een vergunning afgeleverd in 2022 voor 1 commercieel glvl + 5 appartementen.
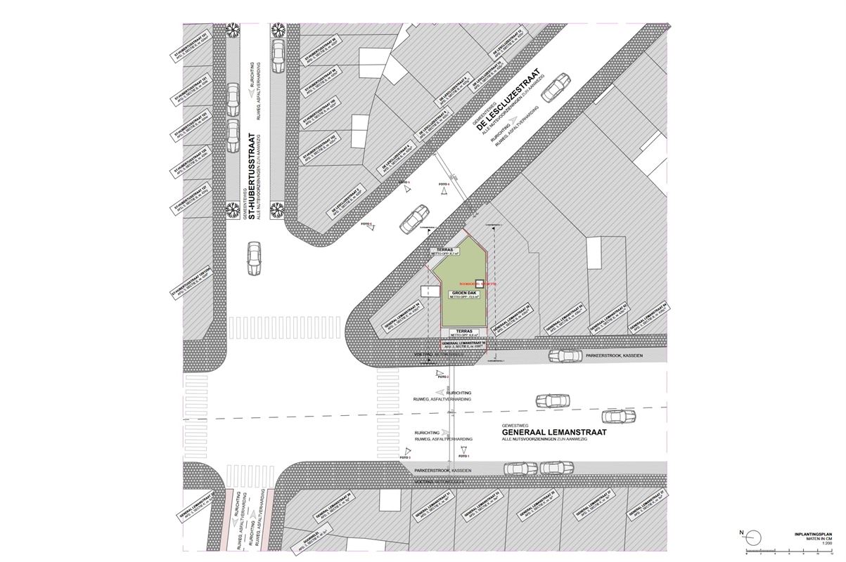
Ligging:
Deze te slopen woning / projectgrond is gelegen aan de Generaal Lemanstraat, vlakbij het centrum van Antwerpen. Vooraan raakt het gebouw de Generaal Lemanstraat, aan de achterzijde komt het gebouw uit in De Lescluzestraat. Uitermate geschikt als kantoor omdat de bereikbaarheid ideaal is voor medewerkers en klanten, slechts enkele minuten verwijderd van de oprit van de A12 en E34.
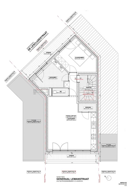
Vergunde indeling:
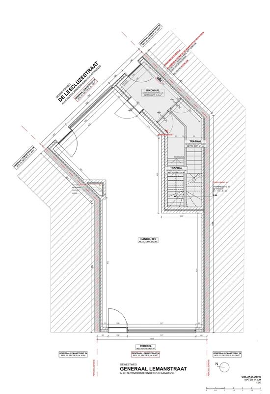
Gelijkvloers:
- inkomhal, met lift en traphal
- commercieel gelijkvloers
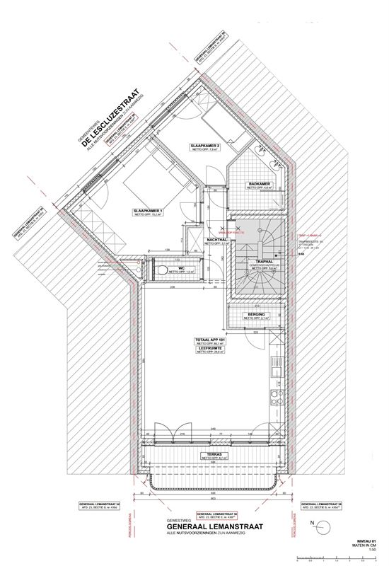
Verdieping 1
- appartement met 2 slaapkamers + terras
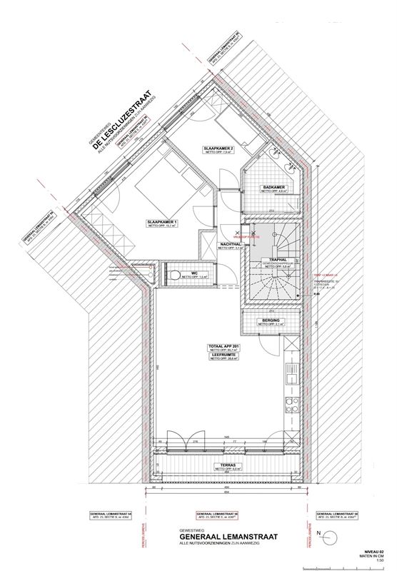
Verdieping 2
- appartement met 2 slaapkamers + terras
Verdieping 3
- appartement met 2 slaapkamers + terras
Verdieping 4
- appartement met 2 slaapkamers + terras
Verdieping 5
- appartement met 1 slaapkamer + terras
Dit pand kan onderhevig zijn aan de renovatieverplichting die door de Vlaamse overheid wordt opgelegd voor residentiële gebouwen. Consulteer voor meer informatie de website van het Vlaams Energie- en Klimaatagentschap via https://www.energiesparen.be/renovatieverplichting-residenti%C3%ABle-gebouwen-2023
























.png?format=webp&width=640&height=auto)
.png?format=webp&width=640&height=auto)