Dit gelijkvloerse appartement is gelegen aan de Sint-Benedictusstraat in Mortsel binnen het energiezuinige nieuwbouwproject Benedicte: een groene thuis voor iedereen die waarde hecht aan duurzaamheid, een natuurlijke omgeving en zalig wooncomfort.
Benedicte is een toekomstgericht en duurzaam BEN-woonproject rondom een nieuw groen en autoluwe park in Mortsel. Alle woningen en appartementen halen minstens EPC label A. Bovendien zijn de gebouwen energiepositief: ze verbruiken dus minder energie dan ze produceren.
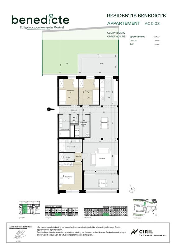
Dit appartement heeft een oppervlakte van 117m², heeft een tuin van 51m² en terrassen van 27m² met zuid oriëntatie, en drie slaapkamers.
Indeling
- inkomhal
- technische berging
- aparte toilet
- ruime woonkamer en eetkamer
- terras 1
- open keuken
- tuin met terras
- slaapkamer 1
- slaapkamer 2
- badkamer 1
- nachthal
- slaapkamer 3
- badkamer 2
- berging 2
Bijzonderheden
- koolstofneutrale massieve houtbouw (CLT)
- energiezuinige BEN-woningen
- maximaal behoud van het bestaande groen
- gelegen in een autoluw park
- 100% hernieuwbare energie
- ondergrondse autostaanplaats en kelder bij aan te kopen
Ben jij geïnteresseerd in dit nieuwbouw appartement te koop in hartje Mortsel, ben je op zoek naar ander vastgoed of wens je de waarde van jouw eigendom te kennen? Dan ben je bij BOLT immo aan het juiste adres! Wij helpen jou graag verder.



























.png?format=webp&width=640&height=auto)
.png?format=webp&width=640&height=auto)









